欢迎访问北京首开天宇设备设施运营管理有限公司!
设为首页
|
加入收藏
|
联系我们
服务热线:
400-825-8848
网站首页
关于我们
产品服务
新闻中心
工程案例
加入我们
在线留言
联系我们
网站首页
关于我们
公司简介
企业文化
管理体系
公司资质
荣誉与展望
战略协作单位
产品服务
电梯维修保养
电梯更新改造
旧楼增设电梯
压力容器
通风空调
安防设备
立体车位
新闻中心
公司新闻
党建新闻
行业新闻
工程案例
篇首语
加装电梯技术条件要求
增设部分结构形式
加装电梯工作流程
后期运行收费方案
自助申请表格下载
免费咨询留言
单侧走廊类住宅快捷工作通道
北京市增梯政策
收费资讯
在线留言
联系我们
‹
›
工程案例
case
篇首语
加装电梯技术条件要求
增设部分结构形式
加装电梯工作流程
后期运行收费方案
自助申请表格下载
免费咨询留言
单侧走廊类住宅快捷工作通道
北京市增梯政策
联系我们
Contact us
联系人:马泽
联系电话:01063465496
办公地址: 北京市西城区三里河东路乙23号楼后院
工程案例
首页:
工程案例
>
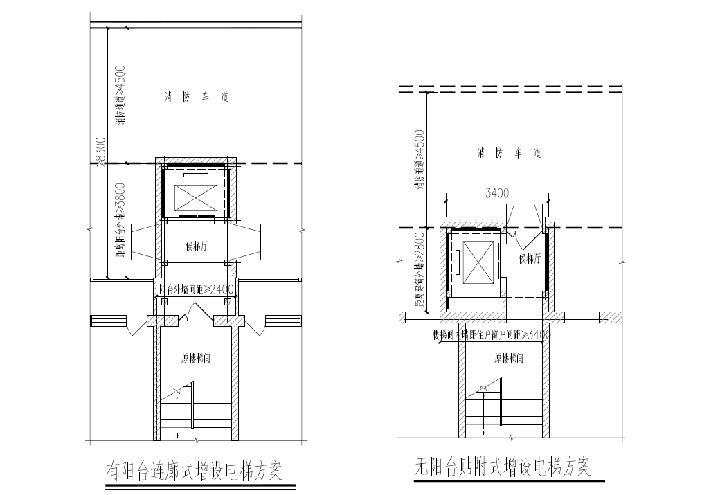
加装电梯技术条件要求
增设电梯通用方案
电话
QQ
留言